Diese Visualisierung der vom Investor Ten Brinke geplanten Bebauung wurde auf der Internetseite der Stadt Memmingen und in der „Memminger Zeitung“ veröffentlicht.
Doch leider stimmt diese auf den ersten Blick ansprechende Darstellung nicht mit den vorgelegten Plänen überein.
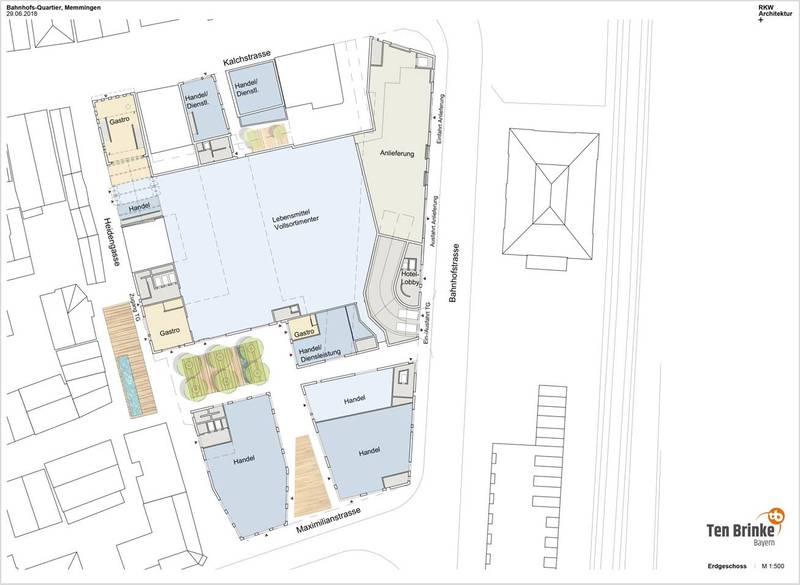
Am auf der Homepage der Stadt Memmingen eingestellten Plan für das Erdgeschoss lässt sich erkennen:
Im Bereich zwischen der hier mit einer roten Linie markierten Stelle und dem rechten Bildrand sind unter Anderem die Tiefgaragenzufahrt und die Anlieferungszone für den Lebensmittelmarkt samt LKW-Ein- und Ausfahrt vorgesehen. Dies wird in der Visualisierung irreführend dargestellt.
Die Fassade dürfte sich aufgrund der erforderlichen Zufahrten sowie der Tore vor der LKW-Einfahrt in der Realität erheblich weniger harmonisch und ansprechend gestalten als es auf diesem Bild dargestellt ist. Im Gegenteil: Es ist eine unbelebte, weitgehend hermetisch abgeschottete Erdgeschoss-Zone entlang eines Großteils der Bahnhofstraße zu erwarten (siehe unten)!
Weitere Kritikpunkte an der Darstellung dieser Ansicht sind:
- Es ist fraglich, wie der Verkehr in der Bahnhofstraße geregelt werden soll im Hinblick auf die zur Bahnhofstraße führende Tiefgaragenzufahrt und die Anlieferungszone.
- Das Bild wurde durch die Darstellung von Bäumen ansprechend gestaltet. Es ist allerdings nicht gesichert, dass entsprechende Baumpflanzungen auch wirklich erfolgen, da sich die Bäume teilweise außerhalb des Investoren-Grundstücks befinden.
- Historisch wurde der betroffene Bereich Bahnhofstraße durch eine Villen-Struktur aus dem 19. Jahrhundert geprägt. Diese Struktur wird durch den vorliegenden Entwurf nicht wiedergegeben; vielmehr entsteht eine ungewöhnlich lange geschlossene Fassadenfront.
Nach den Plänen ist eher folgende Ansicht von der Bahnhofstraße zu erwarten:
Auf der Internetseite der Stadt Memmingen und in der „Memminger Zeitung“ wurde außerdem folgende Visualisierung einer Ansicht des Areals von oben veröffentlicht:
In der Mitte der Bebauung sind größere grüne Flächen zu sehen. Es entsteht der Eindruck, dort sei ein grüner Innenhof.
Tatsächlich stellt dieser Bereich jedoch das Dach des Supermarkts dar, für das eine Dachbegrünung vorgesehen ist. Wie die entsprechende Dachbegrünung am Ende optisch aussehen wird und ob die Dachflächen nutzbar sein werden, ist nicht bekannt.
